
Immeuble à appartements en plein cœur de Houyet avec jardin.
À partir de € 395 000




Afficher +22 photo(s)






















Bâtiment de rapport
2F
7 chambre(s)
5 salle(s) de bain(s)
407 m² de surface habitable
541 m² de surface de terrain
C
Code du bien : 1425976
Description du bien
Spécifications
Caractéristiques
Général
Surface habitable
407.04m²
Superficie du terrain
541.00m²
Surface bâtie
407.04m²
Largeur du terrain
5.00m
Type de superficie
Brut
Orientation terrain
Sud-Est
Façade orientation
Nord-Ouest
Environnement
Centre d'habitation
A proximité des transports en commun
A proximité de gare ferroviaire
Routes d'acces
Revenu cadastral net
€649,00
Chauffage
Type
Chauffage central
Radiateurs
Chaudière
Combustible chauffage
Gaz
Divers
Menuiserie
PVC
Double vitrage
Isolation
Châssis
Eau chaude
Boiler électrique
Bâtiment
Année de construction
1951
Ascenseur disponible
Non
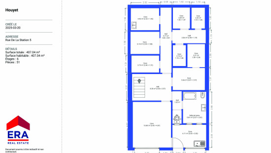
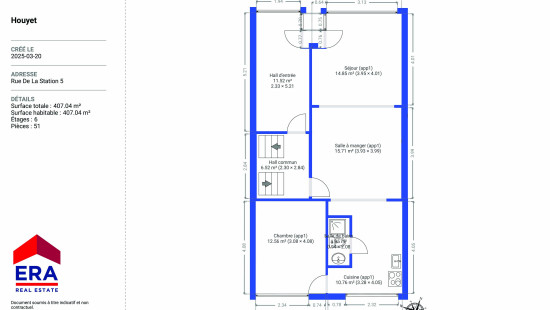
Détails
Chambre à coucher
Living
Toilette
Hall
Salle à manger
Hall
Chambre à coucher
Salle de bains
Cuisine
Chambre à coucher
Living
Toilette
Hall d'entrée
Salle à manger
Hall
Chambre à coucher
Salle de bains
Cuisine
Chambre à coucher
Chambre à coucher
Salle de bains
Cuisine
Hall d'entrée
Living
Hall d'entrée
Living
Salle à manger
Hall
Chambre à coucher
Salle de bains
Cuisine
Cave
Cave
Cave
Cave
Hall
Hall
Cave
Cave
Cave
Hall
Salle de bains
Toilette
Cave
Cave
Hall
Jardin
Informations techniques et mentions légales
Général
Patrimoine classé
Non
Repris dans l’inventaire du patrimoine
Non
Énergie et électricité
Inspection électrique
Attestation électrique - Non-Conforme
Raccordements
Gaz
Electricité
Raccordements aux égouts
Eau de ville
Certificat PEB
Oui
Classe énergétique
C
Niveau E
C
Numéro de certificat
20180205015063
Consommation spécifique d'énergie calculée
242
Emission de CO2
45.00
Consommation totale d'énergie calculée
21454
Information urbanistique
Permis d'urbanisme
Permis non accordé
obligation d'urbanisme
Oui
Dans l'inventaire des locaux inexploités
Non
Objet du plan de alignement
Non
mesure de récupération
Geen rechterlijke herstelmaatregel of bestuurlijke maatregel opgelegd
Autorisation de lotissement
Non
Droit de préemption
Non
Destination urbaine
La zone d'habitat à caractère rural
Zone inondable
Bien immobilier situé en zone non inondable
Obligation de rénovation
Niet van toepassing/Non-applicable
En zone sensible à l'eau
Niet van toepassing/Non-applicable
Fermer
