
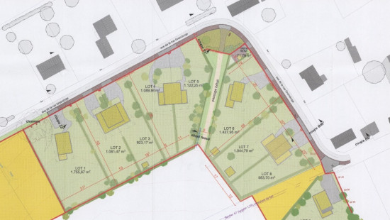
Land
Semi-detached
0 m² habitable sp.
923 m² ground sp.
Property code: 1432991
Description of the property
Specifications
Characteristics
General
Habitable area (m²)
0.00m²
Soil area (m²)
923.17m²
Built area (m²)
0.00m²
Width surface (m)
16.50m
Surface type
Net
Plot orientation
South
Orientation frontage
North
Surroundings
Secluded
Green surroundings
Unobstructed view
Taxable income
€1,00
Heating
Heating type
Undetermined
Heating elements
Undetermined
Heating material
Undetermined
Miscellaneous
Joinery
Undetermined
Isolation
Undetermined
Warm water
Undetermined
Building
Lift present
No
Technical and legal info
General
Protected heritage
No
Recorded inventory of immovable heritage
No
Energy & electricity
Electrical inspection
Not applicable
Utilities
Sewage: to be connected
Electricity: to be connected
Water: to be connected
Detailed information on request
Energy performance certificate
Not applicable
Energy label
-
Planning information
Urban Planning Permit
No permit issued
Urban Planning Obligation
No
In Inventory of Unexploited Business Premises
No
Subject of a Redesignation Plan
No
Summons
Geen rechterlijke herstelmaatregel of bestuurlijke maatregel opgelegd
Subdivision Permit Issued
No
Pre-emptive Right to Spatial Planning
No
Urban destination
La zone d'habitat à caractère rural
Flood Area
Property not located in a flood plain/area
Renovation Obligation
Niet van toepassing/Non-applicable
In water sensetive area
Niet van toepassing/Non-applicable
Close











